Description
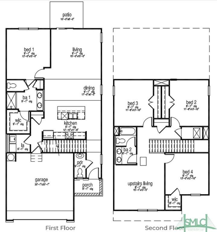
Two Story Manning Plan at Autumn's Wood in Brunswick!! Watch the sun rise & set from your own back yard w/ the spacious lot situated right on the pond w/ water views. Private back yard area for this home! Perfect floorplan with the Primary Suite on Main Level! Open Floorplan includes Spacious Kitchen w/ Large Central Granite Island surrounded by Stainless Steel Appliances including a Refrigerator! Kitchen is Open to Dining Area & Generous Family Room w/ Sliding Door Access to the back patio. Primary Suite enjoys LOVELY Double Vanity Bath w/ Large Walk-In Shower & HUGE Walk-In Closet! Laundry Room conveniently located off 2 Car Garage Entry. INCREDIBLE Upstairs Family Room is the PERFECT Retreat! Pictures, photographs, colors, features, & sizes are for illustration purposes only & will vary from the homes as built. Home is under construction. Homesite is pond frontage location.*Ask how to receive up to $10,000 towards closing cost & below market interest rate w/ use of preferred lender!
-
4BEDS
-
0.18ACRES
-
2BATHS
-
11/2 BATHS
-
2,203SQFT
-
$0$/SQFT
School Information
Description
Two Story Manning Plan at Autumn's Wood in Brunswick!! Watch the sun rise & set from your own back yard w/ the spacious lot situated right on the pond w/ water views. Private back yard area for this home! Perfect floorplan with the Primary Suite on Main Level! Open Floorplan includes Spacious Kitchen w/ Large Central Granite Island surrounded by Stainless Steel Appliances including a Refrigerator! Kitchen is Open to Dining Area & Generous Family Room w/ Sliding Door Access to the back patio. Primary Suite enjoys LOVELY Double Vanity Bath w/ Large Walk-In Shower & HUGE Walk-In Closet! Laundry Room conveniently located off 2 Car Garage Entry. INCREDIBLE Upstairs Family Room is the PERFECT Retreat! Pictures, photographs, colors, features, & sizes are for illustration purposes only & will vary from the homes as built. Home is under construction. Homesite is pond frontage location.*Ask how to receive up to $10,000 towards closing cost & below market interest rate w/ use of preferred lender!
Related Properties
The data relating to real estate on this web site comes in part from the Internet Data Exchange program of Hive MLS LLC, and is updated as of 2026-02-18T08:07:58.03. All information is deemed reliable but not guaranteed and should be independently verified. All properties are subject to prior sale, change, or withdrawal. Neither listing broker(s) nor [name of IDX Participant’s firm] shall be responsible for any typographical errors, misinformation, or misprints, and shall be held totally harmless from any damages arising from reliance upon these data. © 2026 Hive MLS LLC
